-
可租时间2-20年
-
付款方式押三付三
-
工商注册可注册
-
看房提前联系
-
房间面积3731.58㎡,可容纳300-1000个工位
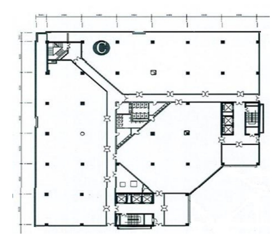
房源描述
推荐面积:3731.58平米
楼 层:C座7层(整层)
装修状况:客户遗留装修
朝 向:四面采光
项目介绍
位置:东二环东四十条桥西北角,地处北京铂金地段东二环,是北京著名的典型地标,集公交,城铁,环线地铁为一体行成四通八达的交通网络;
地 铁:2号线东四十条站2-3分钟路程
优势:央、国企首选办公地址,高端客户交流和汇聚的最佳场所,依托“国家支柱产业经济带”的巨大聚集效应,已成为国际,国内企业入住首选之地。
总 建 面:125127平米
楼 座:分为A B C三座
大堂挑高:20.6米
层 数:A-29层,B-29层,C-11层
层 高:5.5米
电 梯:31部(奥的斯)分高低区
电话网络:移动,电信,联通
车位总计:344个 地下:311个 地上:33个
物 业 费:30元/月/平米
员工餐厅:地下一层(人均:10-30元)
入住企业:中国石油,投中集团,格尔软件,天图投资等
收费标准
-
物业费30
-
电费
-
空调费提前联系
-
水费
-
车位费
-
税费
-
宽带费
房源图片
所属项目
中汇广场
[东城区-东四] 北京市东城东直门南大街11号
-
租赁价格8 元/㎡·天
-
在租房源6 套
-
可租面积200-15000
中汇广场
7.5 元/㎡·天
[东城区-东四] 北京市东城东直门南大街11号
海燕
专属顾问
13910613190




