-
可租时间2-20年
-
付款方式押3付3
-
工商注册可注册
-
看房提前联系
-
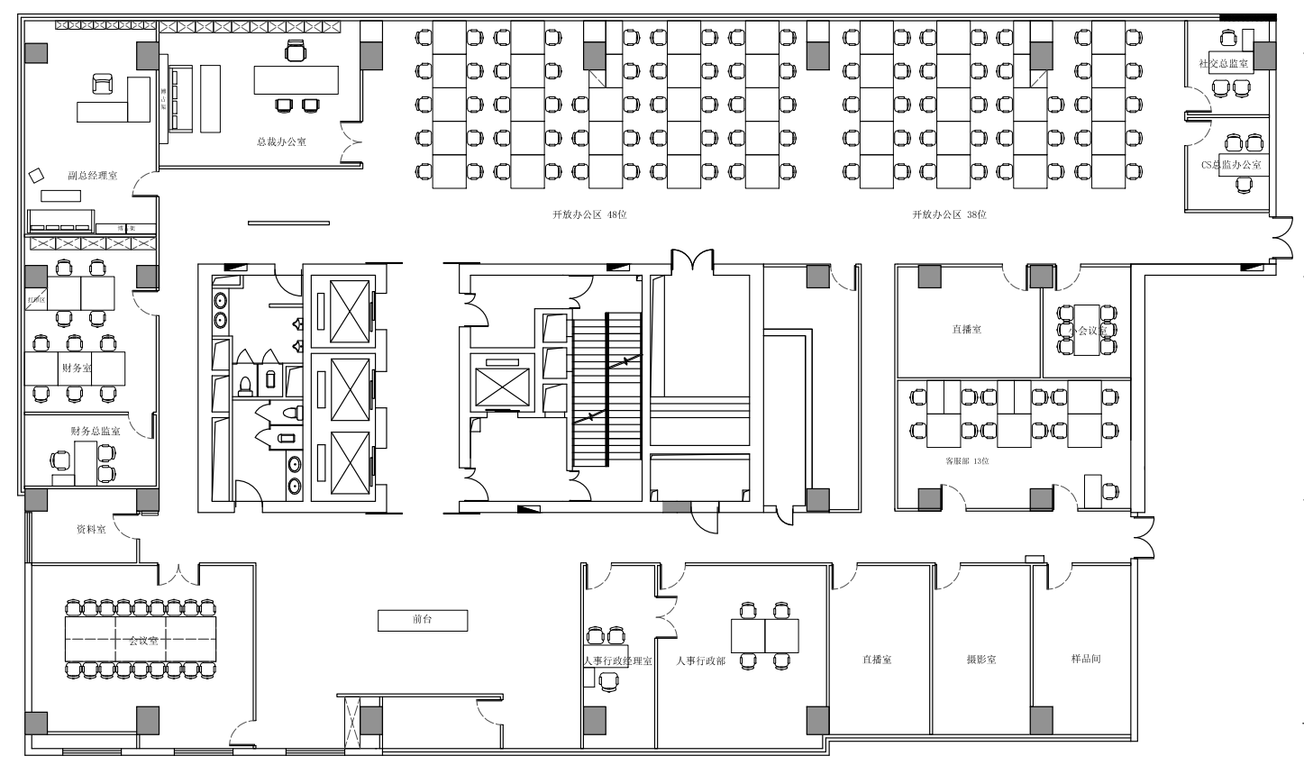
房间面积1163㎡,可容纳100-180个工位
房源描述
交房标准:遗留装修
房源特色:正对电梯厅、独立C座整层、得房率高、270度窗景
朝向:南向、北向、西向
得房率:75%
项目介绍
世茂大厦坐落于东长安街沿线南侧,东临S0H0现代城,北临建国路,西临北京电视台,高档写字楼、高级公寓环绕左右,周围的路网四通五达,北京地铁1、10号线,建国路、东三环、东四环以及南侧的通惠河北路与大厦形成浑然天成的效果。
标准层面积:2,551平方米
【使用率】:76%
【楼层】:21层
【净高】:2.6米
【空调系统】:2管制空调系统
【电梯】:18部三菱原装电梯
【电力】:70瓦/平方米
【楼板承重】:200公斤/平方米
【周边配套】:
餐 馆:花家怡园,肯德基
银 行:北京银行支行(有24小时自助),中国工商银行支行
宾 馆: 大北宾馆,万达索菲特大酒店
酒吧茶馆: 文汝馨居茶膳,上岛咖啡,邦客咖啡
超市商场:大中电器,沃尔玛,711便利店
其 它: 北京电视台,琼方发艺美容养身,奥力健身俱乐部,同仁堂药店,凯翔盛业网吧
收费标准
-
物业费28元/㎡/月
-
电费1.29
-
空调费提前联系
-
水费9.5
-
车位费地下固定车位:1500元/月;地面临停车位:10元/小时
-
税费
-
宽带费
房源图片
所属项目
CBD世茂大厦#
[朝阳区-建国门外] 39.913332,116.477533
-
租赁价格--
-
在租房源1 套
-
可租面积100-10000
CBD世茂大厦#
6.5 元/㎡·天
[朝阳区-建国门外] 39.913332,116.477533
海燕
专属顾问
13910613190




